Pisos

1

Baños

1

Toilets

0

Ambientes

2

Dormitorios

1

Estacionamientos

0

Superficie Total

50.69

Superficie

0.00 M2

Superficie Cubierta

44.61 M2

Superficie Descubierta

0.00 M2

Superficie Semicubierta

6.08 M2

Detalles

Tipo
Departamento
Código

PAP6649764

Características

Servicios
  • Agua Corriente
  • Electricidad
  • Pavimento
Ambientes
  • Terraza
Adicionales
  • Parrilla
  • Apto crédito
  • Termotanque central
  • Ascensor

Descripción

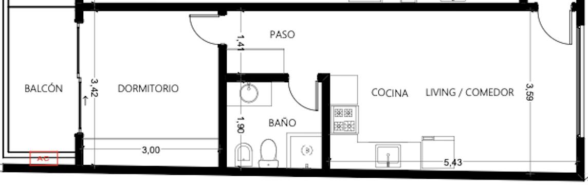
Venta de departamento en pozo, de 2 ambientes, disposición frente de 44,61 m2 cubiertos + 6,08 m2 semicubiertos de balcón.

El edificio también incluye una serie de espacios comunes pensados para el confort y disfrute de sus residentes. Destaca una amplia terraza con solárium y parrillas, ideal para relajarse y compartir momentos especiales. Además, cuenta con un ascensor de última generación para mayor comodidad y accesibilidad.
Emplazado a una cuadra de Avenida Gral Mosconi, a tres cuadras de Av Gral. San Martín y a ocho cuadras de General Paz y fácil acceso conveniente al transporte público.
Fecha de entrega aproximada: Diciembre de 2026. 
Disponibilidad de Financiación.
Contamos a su vez, con unidades de 1, 2 y 3 ambientes disponibles, en este desarrollo.. 
Todas las medidas enunciadas son meramente orientativas, las medidas exactas serán las que se expresen en el respectivo título de propiedad de cada inmueble. Todas las fotos, imágenes y videos son meramente ilustrativos y no contractuales.
MARTILLEROS ALEJANDRA VECCHIO ALBERDI CUCICBA 1076 / NEHUEN GABRIEL PUEBLA CMCPM N°3002 las propiedades que figuran en esta publicación se encuentran a cargo del profesional matriculado de la oficina, la intermediación y la conclusión de las operaciones serán llevadas exclusivamente por él.
Consultar Reservar

Ubicación

Las heras al 2800, La Matanza, G.B.A. Zona Oeste, Argentina

Contactanos

Este sitio esta protegido por Google reCAPTCHA

es_ES