Venta

Av. Montes de Oca 244

ArgentinaCapital FederalBarracas

USD 220.000

Pisos

2

Baños

1

Toilets

0

Ambientes

2

Dormitorios

0

Estacionamientos

0

Superficie Total

176.00

Superficie

0.00 M2

Superficie Cubierta

160.00 M2

Superficie Descubierta

9.53 M2

Superficie Semicubierta

6.34 M2

Detalles

Tipo
Local
Código

PLO6712959

Características

Servicios
  • Agua Corriente
  • Electricidad
  • Cochera fija cubierta

Descripción

Venta de local comercial sobre Avenida Montes de Oca, Zona de alto tránsito.

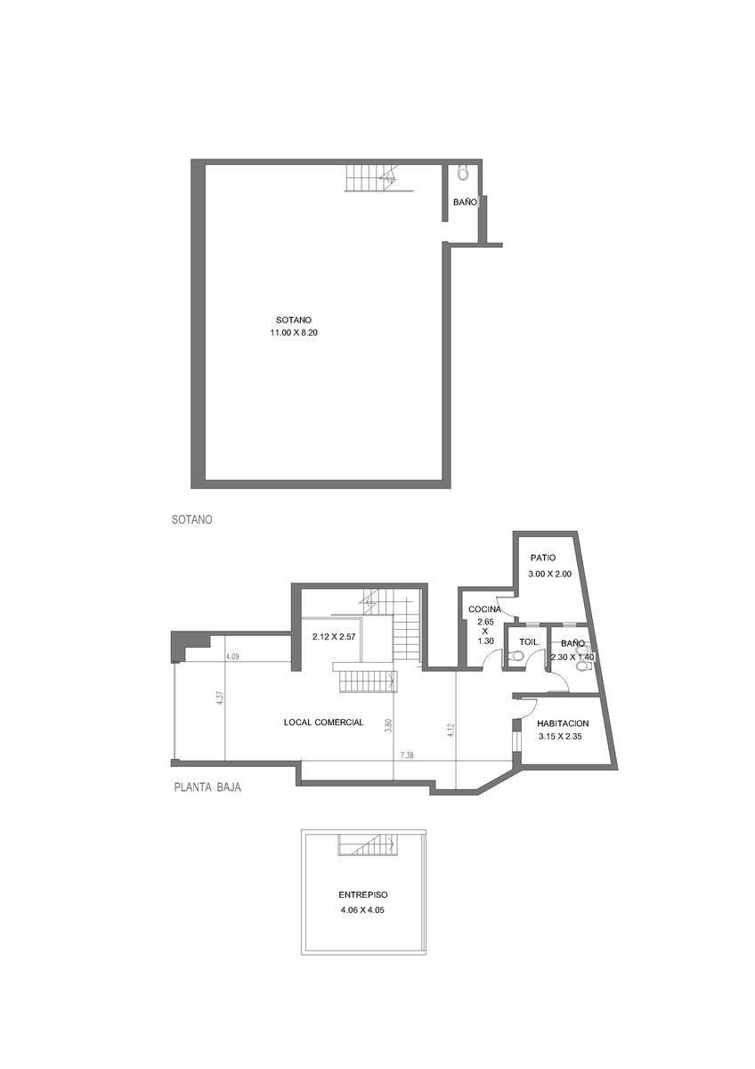
La propiedad cuenta con dos baños, cocina, habitación y patio en la parte trasera de la planta baja, tiene un amplio sótano de 92m2 y un entrepiso de 16m2.
Se encuentra en una zona de mucho tránsito, tanto peatonal como automotor, con varias líneas de transporte publico circulando por la Avenida Montes de Oca. 
Local comercial en muy buen estado, tiene renta hasta junio 2025.
Todas las medidas enunciadas son meramente orientativas, las medidas exactas serán las que se expresen en el respectivo título de propiedad de cada inmueble. Todas las fotos, imágenes y videos son meramente ilustrativos y no contractuales. Los precios enunciados son meramente orientativos y no contractuales.
Mensajes de whatsapp contestamos en el momento los 7 días de la semana.
MARTILLEROS ALEJANDRA VECCHIO ALBERDI CUCICBA 1076 / NEHUEN GABRIEL PUEBLA CMCPM N°3002 las propiedades que figuran en esta publicación se encuentran a cargo del profesional matriculado de la oficina, la intermediación y la conclusión de las operaciones serán llevadas exclusivamente por él.
Consultar Reservar

Ubicación

Av. Montes de Oca al 200, Barracas, Capital Federal, Argentina

Contacto Puebla Inmobiliaria

Este sitio esta protegido por Google reCAPTCHA